Behar Hoxha

Behar Hoxha

C: (814) 737-2457
Login
Back

$578,000.00

7656 OAKWILDE Dr, FAIRVIEWTOWNSHIP PA 16415

4  | 4.00  | 2200 ft2

Residential   Single

Jan. 15, 2026, 11:27 a.m.


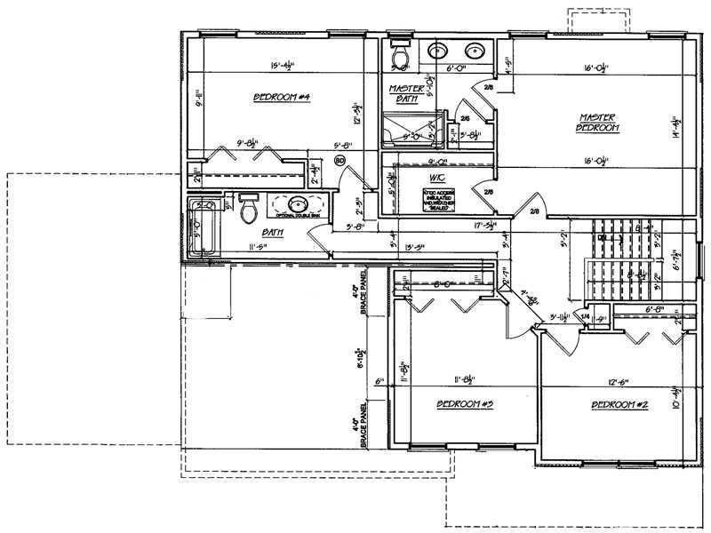
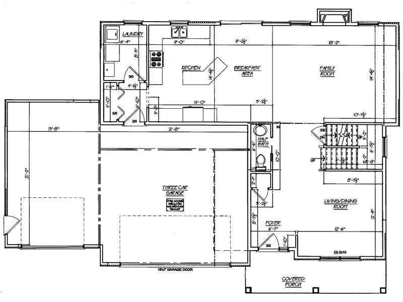
One or more photos have been virtually staged. This inviting 4 bedroom, 3 1/2 bath home is in Fairview’s sought-after Evergreen Farms community. The open, airy layout offers generous room sizes, anchored by a well-appointed Kitchen with granite countertops, a center work island, & stainless-steel appliances. The adjacent Family Room offers beautiful maple hardwood flooring & a cozy gas fireplace while the versatile Flex Space in the front room can be used as a Dining Room, Home Office or however you see fit. The professionally finished Lower-Level Recreation Room offers a full bath and adds comfortable living space for guests, hobbies, or movie nights. Also, First-Floor Laundry with W/D included, 9' ceilings on the 1st floor, and an impressive 3-car attached garage. New tankless hot water tank 2023, Culligan water treatment system with reverse osmosis included. This move-in-ready home offers comfort, space, and an exceptional location—perfectly prepared for you to make it your own.

Listed by: Carol Johnson (814) 833-9801, RE/MAX Real Estate Group Erie (814) 833-9801

Source: MLS#: 189345; Originating MLS: Greater Erie Board of Realtors

DirectionsEvergreen Farms is located across from the Fairview School campus on Route 98 (Avonia Road.)
Year Built2013
Area8 - Fairview Boro & Twp
Road SurfacePaved Public
WaterPublic
School DistrictsFairview
Lot DescriptionLandscaped,Level
Building InformationExisting Structure
ConstructionVinyl
Fuel TypeGas
Interior DescriptionsCable Hook Up,Ceramic Baths,Dryer,Garage Door Opener,Smoke/Fire Alarm,Washer,Water Softner
Kitchen FeaturesDishwasher,Disposal,Microwave,Range Oven/Gas (Included),Refrigerator
Roof DescriptionComposition
Floor DescriptionCeramic,Hardwood,Wall To Wall Carpeting
Heating TypeForced-Air
FireplaceGas
GarageAttached
Street View

Send your inquiry

How the information gets used?
Your information will be used only to contact you. Please read the Privacy Policy for more information.