Behar Hoxha

Behar Hoxha

C: (814) 737-2457
Login
Back

$13.69

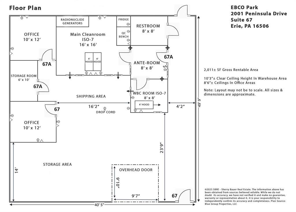
2001 PENINSULA Dr 67, ERIECITY PA 16506

| 1.00  | 2011 ft2

Commercial Industrial   Industrial/Lease

March 27, 2025, 5:12 p.m.


2,011± SF Industrial space. Space dimensions: approximately 49’9” x 40’5” – floor plan available. Large shipping area & storage area with 9’10” x 9’7” overhead door to shared truck docks. Two 10’ x 12’ private offices & 6’ x 10’ storage room. 3-Room laboratory area (384± SF) & private restroom – equipment negotiable. 10’3” clear ceiling height in warehouse area & 8’6” ceiling height in other areas. Shared amenities include break room, restrooms & conference rooms. Abundant free parking, fiber optic internet & illuminated signage available. Located just east of Peninsula Drive & W. 23rd Street – 1 mile from I-79. Offered at $13.69/SF/YR ($2,295/Month) plus electric. Additional office & industrial space available.

Listed by: Amanda Bogert (814) 453-2000, SBRE - Sherry Bauer Real Estate Services (814) 453-2000

Source: MLS#: 182101; Originating MLS: Greater Erie Board of Realtors

DirectionsPeninsula Drive to east on W. 23rd Street to left on EBCO Drive. 2001 Peninsula is the building on left where EBCO Drive tees into W. 21st Street.
Year Built1950
Area5 - Millcreek N of W26
WaterPublic
School DistrictsMillcreek
Building InformationExisting Structure
ConstructionBrick,Masonry
Fuel TypeGas
Heating TypeRadiant
Street View

Send your inquiry

How the information gets used?
Your information will be used only to contact you. Please read the Privacy Policy for more information.