Behar Hoxha

Behar Hoxha

C: (814) 737-2457
Login
Back

$1,125,000.00

3250 W LAKE Rd, ERIECITY PA 16505

| 6.00  | 8972 ft2

Commercial Industrial   Commercial/Sale

Oct. 3, 2025, 8:04 p.m.


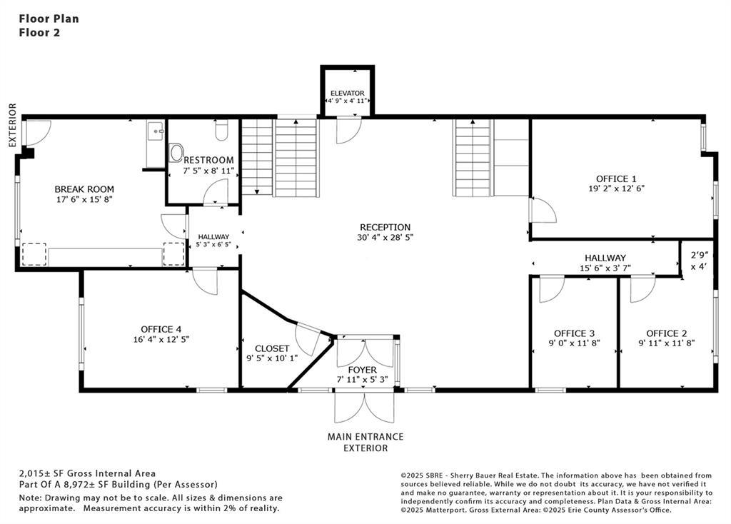
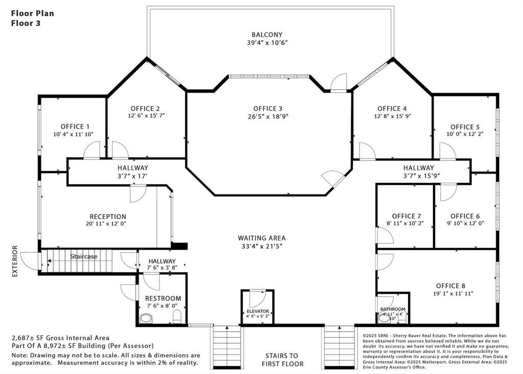
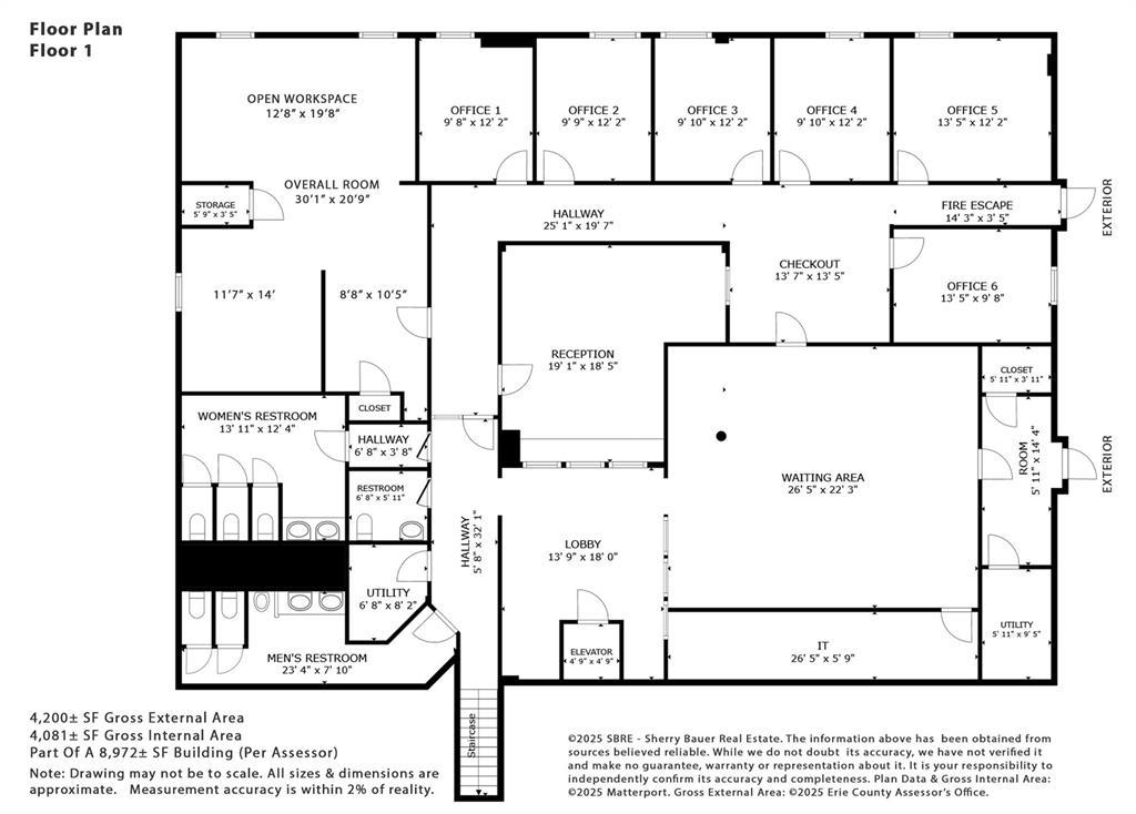
8,972± SF office building on 1.5± acre scenic lot. Built in 1983 & fully renovated in 2019. Layout features a mix of private offices & open workspace with abundant natural light & modern finishing. Three floors of office space. Ideal for single or multi-tenant use. Easily sub-divisible for 3-7 tenants. All floors include windows & ADA accessibility with elevator. Reception, waiting area & restrooms on all 3 floors. Total of 18 private offices - 17 with windows. Two upper floor offices include balcony access for outdoor enjoyment. Total of 6 restrooms. Parking for ±40. 3D tour & floor plan available. Other features: 3 zone alarm system, key fob access, 85 kW natural gas generator with auto transfer switch & fiber optic internet. Additional 560± SF garage with overhead doors at both ends –accessible via Baer & Stonegate Drives. 1.5± acre lot offers room for expansion or additional parking. Zoned MU-1 (Millcreek Township). Currently owner occupied. Owner to vacate prior to closing.

Listed by: Sherry Bauer (814) 453-2000, SBRE - Sherry Bauer Real Estate Services (814) 453-2000

Source: MLS#: 188085; Originating MLS: Greater Erie Board of Realtors

DirectionsNorth side of W. Lake Road between Baer Drive & Stonegate Drive. Across from Calvary Cemetery.
Year Built1983
Area5 - Millcreek N of W26
WaterPublic
School DistrictsMillcreek
Building InformationExisting Structure
ConstructionMixed
Fuel TypeGas
Heating TypeForced-Air
Street View

Send your inquiry

How the information gets used?
Your information will be used only to contact you. Please read the Privacy Policy for more information.