Behar Hoxha

Behar Hoxha

C: (814) 737-2457
Login
Back

$10.60

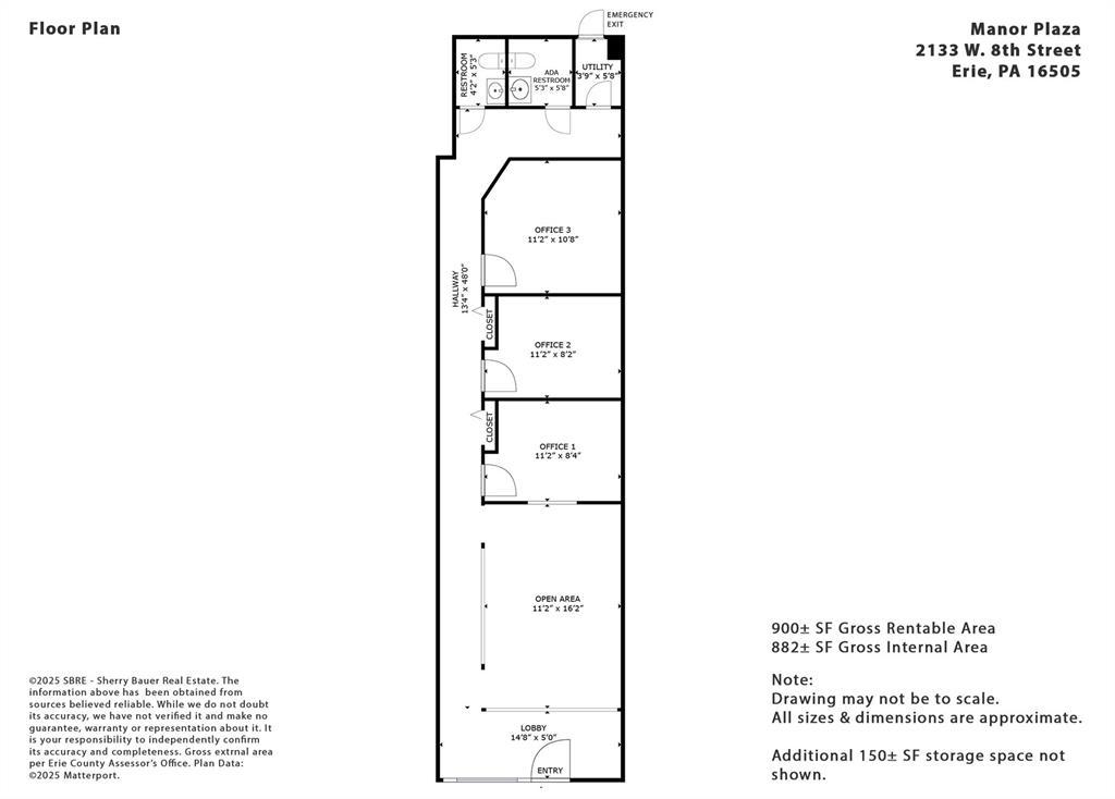
2133 W 8TH St, ERIECITY PA 16505

| 2.00  | 900 ft2

Commercial Industrial   Commercial/Lease

Sept. 22, 2025, 8:13 p.m.


900± SF mixed-use space available at Manor Plaza – endcap unit. Current layout includes a large open front area, 3 private offices, 2 restrooms including an ADA restroom, closets for storage & a utility closet. Landlord will renovate space depending on tenant use. 3D tour & floor plan available. Additional 150± SF lower level storage space included. Excellent signage & visibility with 7,100± average daily traffic (PennDOT AADT 2024 count year). Abundant free parking in paved parking lot. Zoned C-1. Join Acrisure Insurance Agency, Ashley & Kuzma Physical Therapy, Beals-McMahon Painting, Bonus Accounting, Dynamic Family Chiropractic, Erie Oriental Medicine, Ideal Home Health Care Agency, Lake Erie Learning Solutions, Professional Interpreters of Erie. Warden Asphalt Company, Your Visual Fantasy Salon & more at Manor Plaza! Offered at $10.60/SF/YR-NNN ($795/Month-NNN). NNN estimated at $3.42/SF/YR. Tenant pays approximately $1,052/month plus gas & electric.

Listed by: Sherry Bauer (814) 453-2000, SBRE - Sherry Bauer Real Estate Services (814) 453-2000

Source: MLS#: 187979; Originating MLS: Greater Erie Board of Realtors

DirectionsW. 8th Street east of Pittsburgh Avenue - Across from Connecticut Drive.
Year Built1961
Area2 - Erie Northwest
WaterPublic
School DistrictsCity-Erie
Building InformationExisting Structure
ConstructionMixed
Fuel TypeGas
Heating TypeForced-Air
Street View

Send your inquiry

How the information gets used?
Your information will be used only to contact you. Please read the Privacy Policy for more information.