Behar Hoxha

Behar Hoxha

C: (814) 737-2457
Login
Back

$22.00

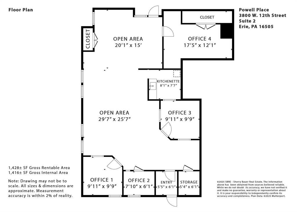
3800 W 12TH St 2, ERIECITY PA 16505

| 2.00  | 1428 ft2

Commercial Industrial   Commercial/Lease

Jan. 13, 2026, 3:50 p.m.


1,428± SF office suite available. New carpet & paint throughout. Layout includes large open workspace with windows for natural light, 4 private offices, storage room, kitchenette & private entrance. Floor plan available. Abundant free parking & excellent visibility. Signage along W. 12th Street a major east-west corridor with 14,000 average daily traffic (PennDOT AADT 2024 count year). Easy egress with entrance at a signalized intersection. Centrally located & on the public bus route. Offered at $22.00/SF/YR - full service. Tenant pays $2,618/month plus desired phone/internet, all other utilities included. Up to 2,978± SF available.

Listed by: Sherry Bauer (814) 453-2000, SBRE - Sherry Bauer Real Estate Services (814) 453-2000

Source: MLS#: 189311; Originating MLS: Greater Erie Board of Realtors

DirectionsW. 12th Street at Powell Avenue. Use W. 12th Street entrance. First door on right plus private entrance along Powell Avenue.
Year Built1960
Area5 - Millcreek N of W26
WaterPublic
School DistrictsMillcreek
Building InformationExisting Structure
ConstructionBrick
Fuel TypeGas
Heating TypeForced-Air
Street View

Send your inquiry

How the information gets used?
Your information will be used only to contact you. Please read the Privacy Policy for more information.