Behar Hoxha

Behar Hoxha

C: (814) 737-2457
Login
Back

$18.00

2421 ASBURY Rd, ERIECITY PA 16506

| 1.00  | 1000 ft2

Commercial Industrial   Commercial/Lease

Nov. 10, 2025, 1:45 p.m.


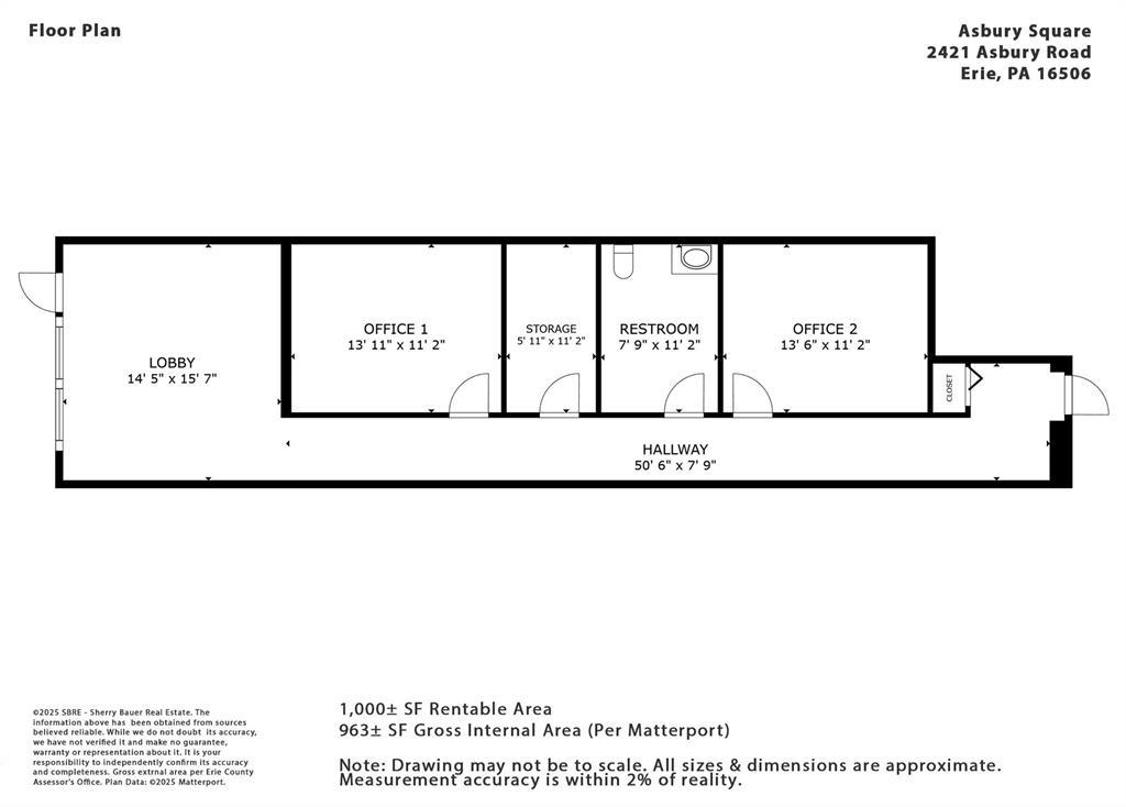
1,000± SF mixed-use space available for lease at Asbury Square. Former Edward Jones office. Located at a signalized intersection along a high traffic corridor adjacent to Sheetz and Lowe's. 17,000 average daily traffic along W. Ridge Road & 8,900 average daily traffic along Asbury Road (AADT PennDOT 2024 count year). Layout includes open front area 2 large private offices, storage room & restroom. Floor plan available. Zoned MU-2, Corridor Mixed-Use, in Millcreek Township. Zoning permits many uses: office, restaurant, retail, pet grooming & more. Offered at $18.00/SF/YR plus CAM & utilities. CAM estimated at $5.47/SF/YR. Tenant pays approximately $1,956/month (rent & CAM) plus utilities. Join Fit Plus, PA Fine Wine & Good Spirits, Yummy Bowl, Prince Smoke Shop & Marco's Pizza at Asbury Square!

Listed by: Sherry Bauer (814) 453-2000, SBRE - Sherry Bauer Real Estate Services (814) 453-2000

Source: MLS#: 188773; Originating MLS: Greater Erie Board of Realtors

DirectionsW. Ridge Road at northeast corner with Asbury Road by Lowes. Eastern/Right end of Asbury Square plaza between Marco's Pizza & Prince Smoke Shop.
Year Built2001
Area5 - Millcreek N of W26
WaterPublic
School DistrictsMillcreek
Building InformationExisting Structure
ConstructionBrick,Masonry
Fuel TypeGas
Heating TypeForced-Air
Street View

Send your inquiry

How the information gets used?
Your information will be used only to contact you. Please read the Privacy Policy for more information.